- Alle Regionen
- >
- Pazifik Süd
- >
- San Isido
Permakultur-Farm mit modernem Tropenhaus bei San Isidro
mit 220 Meter Flussanstoss
850 m.ü.M. mit perfektem Klima. Das absolute Paradies für nachhaltiges Leben und Entspannung. Von einem Permakultur-Experten entworfen, ist dieses gut durchdachte und ökologisch verantwortungsvolle Design so organisiert, dass Effizienz, Nachhaltigkeit und die Integration von natürlichen Systemen maximiert werden.
Modernes Tropenhaus mit Infinity-Pool, voll möbliert:
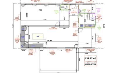
Das Modern Tropical Home mit Infinity-Pool mit den Maßen 3,4 x 6 m und einer Tiefe von 1,5 m bietet einen luxuriösen und komfortablen Lebensraum inmitten der Schönheit der Natur. Das gut durchdachte Haus verfügt auf 138 qm über einen Wohnraum, zwei Schlafzimmer, eineinhalb Bäder und einer großen Terrasse. Es wurde mit Blick auf die Zukunft entworfen und bietet viel Platz für Erweiterungen. Es gibt reichlich Platz, um Stauraum oder um zusätzliche Zimmer einzurichten, so dass die Bewohner das Haus an sich ändernden Bedürfnisse anpassen können. Der Infinity-Pool verleiht dem Haus einen Hauch von Eleganz und dient als erfrischende Oase, in der die Bewohner die tropische Umgebung genießen können.
Das Grundstück grenzt auf 220 Metern an den Rio Calientillo, mit einem ruhigen Flussufer und drei leicht zugänglichen Schwimmlöchern. Außerdem fließt ein anmutiger Bach in der Mitte des Grundstücks.
Die Farm mit einer Vielzahl von Obstbäumen, Kräutern und Gemüse, die sorgfältig ausgewählt und für eine ganzjährige Ernte kultiviert werden. Dazu gehören saure Mandarinen, süße Zitronen, Ingwer, Kurkuma, Holunder, Brombeeren, schwarze Himbeeren, Katuk, Ananas, einheimische Tomaten und Paprika, Nampi, Yucca, Zuckerrohr, Baumbohnen, Spinat, Frühlingszwiebeln, Cranberry-Hibiskus, jamaikanischer Hibiskus, Eukalyptus, Oregano, Minze, Thai-Ingwer, Kardamom, Zitronengras, Erdbeeren, einheimisches Basilikum, schwarzer Pfeffer, Papas, Papa chiricana, Brotnuss, Brotfrucht, Moringa, Maulbeere, Knoblauchgras, Knoblauchblütenpflanze, Zimtstrauch und blühender Ingwer.
Infrastruktur:
Hühnerställe und Cabana, Kompostierbereich, Sonnenkästen aus Holz zum Trocknen von Kräutern, Obst und Gemüse, die Konservierung von Lebensmitteln.gemauerter Pizzaofen ein Brennofen und eine ebene Fläche mit Platz für vielfältige Freizeitaktivitäten.
Der Sitzbereich am oberen Ende des Grundstücks mit Panoramablick ermöglicht den Bewohnern einen atemberaubenden Blick auf die Farm, die Berge und die umliegende Landschaft.
Insgesamt stellt diese Permakultur-Farm mit dem modernen Tropenhaus, den natürlichen Gegebenheiten, der vielfältigen Bepflanzung eine perfekte Mischung aus nachhaltigem Leben, Luxus und Naturverbundenheit dar. Es ist eine Traumimmobilie für jeden, der harmonisch mit der Umwelt leben und gleichzeitig einen komfortablen Pura-Vida-Lebensstil genießen möchte.
Kontakt aufnehmen
Ihr Ansprechpartner
Lothar Kahl / Kahl & Partner Immobilien S.A.
+506 8824 7389 WhatsApp/Signal/Telegram
Telefon: +41 44 586 9364
E-Mail: info@kahl-partner.com
Skype lotharkahl
































